Killarney
| 4 |
3.5 |
2 |
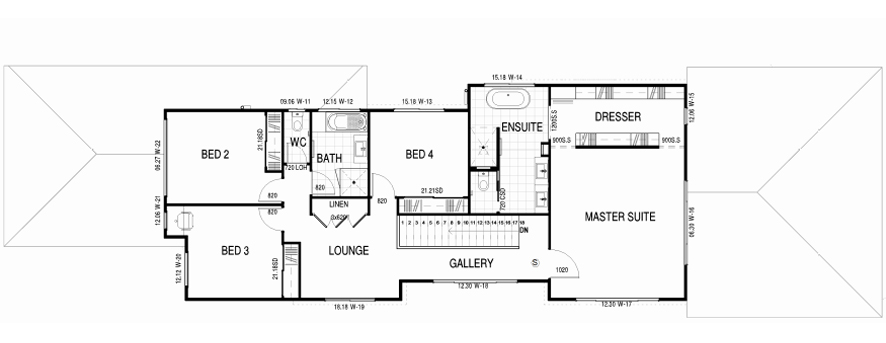
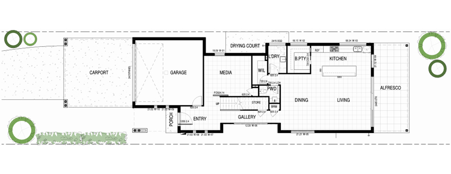
This four bedroom house has been designed to take advantage of narrow blocks. Space has been maximized to provide ample living area, with the master featuring a walk in wardrobe and private ensuite.
| Living - SQM | Garage - SQM |
| Patio - SQM | Porch - SQM |
| Total - SQM |



