Alexander
| 4 |
3.5 |
2 |
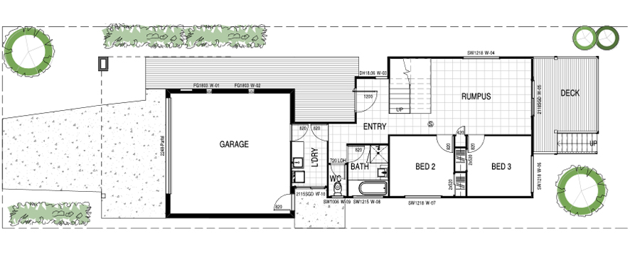
Our four bedroom, two bathroom highset house meets all the requirements for modern family living. The upper level has a spacious living area with a forward positioned balcony which is perfect for entertaining. The ground level creates an ideal retreat for children and guests.
| Living - 72.57 SQM | Garage - 40.75 SQM |
| Deck - 23.58 SQM | Porch - 7.92 SQM |
| Total - 280.93 SQM |




