Home
Meet The Team
Designs
Gallery
Testimonials
Contact
Home
Meet The Team
Designs
Gallery
Testimonials
Contact
07 3823 3200
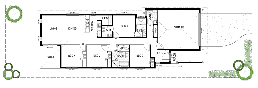
Belmont
4
2
2
Living - SQM
Garage - SQM
Deck - SQM
Porch - SQM
Total - SQM
Request a Quote
All we need is a few details and we'll be in touch
*
Invalid Input
Invalid Input
*
Invalid Input
*
Invalid Input
*
Invalid Input
*
Invalid Input
Request a Quote >>
Builders Lic 328475.
Copyright 2018. All Rights Reserved.